5.25" Diskette Adapter
188-216 5.25" External, Internal Diskette Drive, and Diskette Adapter/A
@DFFA.ADF - 5.25" Diskette Drive Adapter (1.2MB card only!)
4869drve.exe 1.2MB Floppy Adapter Option disk
5.25" 1.2MB / 360KB External Diskette Adapter
5.25" 360KB External Diskette Adapter  Lacks any POS circuitry.


5.25" 1.2MB / 360KB External Diskette Adapter FRU 15F7996
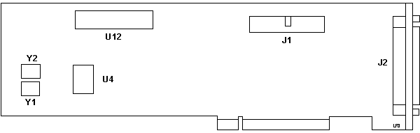
J1 34 Pin floppy header
J2 DB37 external floppy
U4 15F8072
U12 NEC D765BC
Y1 19.200 MHz xtal
Y2 32.000 MHz xtal
 Allows the 4869-001 or 002 to be attached to the 8550, 8560, 8570, or 8580 system unit or the diskette drive (6451006) to be attached to the Personal System/2 8560 or 8580 system unit.  A device driver is used with the 4869 or PS/2 Internal Diskette Drive (6451006). This adapter can accommodate up to two 5.25-inch diskette drives, one external and/or one internal drive in the following system configurations:
   TWO DISKETTE DRIVES           ONE DISKETTE DRIVE
    MODELS 60, 80            MODELS 50,       MODELS
         ONLY                60, 70, 80      60, 80
EXTERNAL      INTERNAL       EXTERNAL       INTERNAL
4869-001 and  6451006        4869-001   or   6451006
4869-002 and  6451006        4869-002

David Beem weighs in with:
  I have the driver for this board (4869drve.exe). Interesting to note the 34-pin 'J1' is a conventional floppy pinout (no power on the connection)   that gives you a standard 34-pin (read: clone) floppy data connection on the board. This is for the PS/2s that have a 5-1/4" bay & the separate drive power plugs. The driver only recognizes the 5-1/4" drive types (360Kb or 1.2Mb), but will read a conventional 1.44Mb drive fine (Identified as 1.2Mb. You can also DRIVPARM it to make it appear like it should.). Can't supplant the regular floppy drives this way though: The attached drive is set up as the next available drive letter. If you have a compressed drive that the host partition is "H:" the attached floppy will be "I:". With both an internal & external drive attached to this board the internal drive is configured
first. Only one drive can be on each of the connections. The internal ribbon
cable should have no twists.

Tim Clark boasts:
   Anyway, the point of all this is that I found that the 1.2MB could be configured as "Drive B:" by editing the system ADF to add the 5.25" drive codes, provided that the later version of SC.EXE (V2.20?) was being used.



5.25" 360KB External Diskette Adapter FRU 72X6758

   The 360KB adapter has three small ICs to the left of P3. The rest of the "adapter" is bare. This adapter is intended  *only* for the 360K version of the IBM 4869-001 external 5.25" drive (embossed "Star" symbol in the faceplate of the drive).

>72x6755 is a card fitted to a plastic bracket making it fit into the second floppy bay of the 8570 I got it from  It had a connector on the side, which was connected by ribbon cable to the MCA card (72x6753) that had a  floppy connector on the side (same size and shape, anyway

David Beem again lays it out by saying:
   Nothing more than a pass-through MCA riser. You have to put in a bay adapter & 34-pin connecting cable too.

9595 Main Page